W sobotę, 11 kwietnia o godz. 11, przy rondzie 4 Czerwca 1989 r. w Sopocie, tuż obok Ergo Areny, odbędzie się protest przeciwko planowanej zabudowie terenów zielonych pomiędzy halą widowiskowo-sportową a pasem nadmorskim. Organizatorzy zapowiadają krótką, symboliczną blokadę drogi.
Jak zapowiada Jakub Świderski, radny Sopotu (PiS), uczestnicy spotkają się bezpośrednio na jezdni ronda. Protest ma mieć charakter ostrzegawczy i potrwać zaledwie kilkanaście minut.
– To będzie ostrzegawcza blokada drogi. Nie na dwie czy trzy godziny, tylko na kilkanaście minut, żeby zwrócić uwagę władz miasta na problem – mówi radny w rozmowie z portalem Dzień Dobry Sopot – esopot.pl.
Zgłoszenie zgromadzenia przewiduje udział około 100 osób, choć rzeczywista frekwencja jest trudna do oszacowania, ponieważ będzie to pierwszy tak zorganizowany protest w tej sprawie.
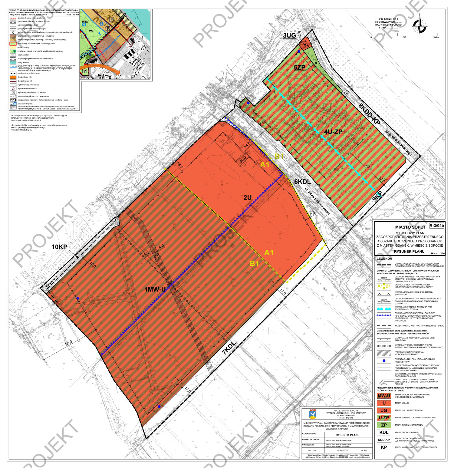
Protest dotyczy planów zagospodarowania terenów pomiędzy Ergo Areną a ul. Bitwy pod Płowcami, które są obecnie objęte projektem nowego miejscowego planu zagospodarowania przestrzennego.
W dokumentach planistycznych przewidziano możliwość powstania w tym rejonie zabudowy mieszkaniowej wielorodzinnej z usługami, a także nowych dróg i ciągów komunikacyjnych. Zmiany miałyby objąć m.in. tereny w sąsiedztwie Rodzinnych Ogrodów Działkowych „Oaza” oraz naturalnych łąk i podmokłych obszarów w Dolnym Sopocie.
Zdaniem organizatorów protestu takie rozwiązanie oznaczałoby dalsze ograniczenie terenów zielonych w tej części miasta.
– Oczekuję tego, że miasto odstąpi w całości od zabudowy terenów między Ergo Areną i Bitwy pod Płowcami – podkreśla radny Jakub Świderski.
Do sprawy odniosło się także Miasto Sopot. Jak przekazała Izabela Heidrich, rzeczniczka prasowa Urzędu Miasta Sopotu, planowane zmiany nie są nową sytuacją ani dla miasta, ani dla działkowców.
Jak informuje magistrat, już w 2019 roku Polski Związek Działkowców miał zostać poinformowany o planowanej likwidacji ROD „Oaza” i zamiarze zagospodarowania tego terenu zgodnie z miejscowym planem.
Miasto podkreśla również, że zmiana planu ma związek z konsekwentnie realizowaną strategią rozwoju Sopotu jako uzdrowiska. Sopoccy radni już w 2021 roku jednogłośnie poparli uchwałę o przystąpieniu do zmiany miejscowego planu zagospodarowania przestrzennego, podobnie jak rozszerzenie strefy uzdrowiskowej.
Według informacji przekazanych przez urząd, dzięki nowemu planowi Sopot ma zyskać przestrzeń do rozwoju funkcji uzdrowiskowych. Chodzi m.in. o rozszerzenie strefy ochrony uzdrowiskowej A o około 2,76 ha, co obejmuje około dwóch trzecich obszaru ROD „Oaza”.

W pozostałej części, położonej w strefie B, miasto planuje możliwość wykonania odwiertu solanki, który – jak argumentuje magistrat – jest potrzebny z uwagi na rosnące zapotrzebowanie związane z rozwojem działalności uzdrowiskowej w Sopocie.
Ratusz przekonuje, że tereny zielone wraz z infrastrukturą uzdrowiskową mają w przyszłości służyć wszystkim mieszkańcom i gościom odwiedzającym miasto.
W odpowiedzi przesłanej redakcji magistrat zwraca uwagę również na kwestie sanitarne i środowiskowe. Jak podano, na terenie ogrodów mają znajdować się nielegalne przyłącza sanitarne, studnie i szamba, a ponieważ znaczna część działek leży w strefie uzdrowiskowej A i w pobliżu ujęcia wody, taka sytuacja – zdaniem urzędu – jest niedopuszczalna.
Miasto podkreśla też, że zgodnie z ustawą uzdrowiskową w strefie A nie można budować nowych lokali mieszkalnych, a odwiert solanki wymaga dodatkowo wyznaczenia strefy ochronnej bez możliwości zabudowy. Jednocześnie magistrat zaznacza, że nowy plan umożliwiłby połączenie ul. Bitwy pod Płowcami z projektowanym przez Gdańsk kolejnym odcinkiem Drogi Zielonej.
Obszar między halą a granicą z Gdańskiem jest jednym z ostatnich większych niezagospodarowanych terenów zielonych w Dolnym Sopocie. Jakub Świderski zwraca uwagę, że znajdują się tam zarówno ogrody działkowe, jak i fragmenty podmokłych łąk oraz terenów o charakterze naturalnym.
– To ostatni teren zielony w Dolnym Sopocie, który jest jeszcze niezagospodarowany i zachowuje oznaki naturalności. Zabudowywanie go mija się z potrzebami mieszkańców – ocenia radny.
W jego opinii argument, że zabudowa jest naturalnym przedłużeniem intensywnej zabudowy po stronie Gdańska, nie powinien być decydujący dla planowania przestrzennego w Sopocie.
W przesłanym stanowisku miasto zwraca również uwagę na strukturę użytkowników ogrodów działkowych. Jak podaje magistrat, na 147 działek ROD „Oaza” tylko 17 działkowców to mieszkańcy Sopotu. Pozostałe osoby mają mieszkać m.in. w Gdyni, Redzie, Koleczkowie, Liniewie, Barczewie, a nawet w Dąbrowie Górniczej, Solcu Kujawskim czy Gorlicach.
Urząd argumentuje przy tym, że Sopot oferuje mieszkańcom wiele innych możliwości aktywnego wypoczynku na świeżym powietrzu, wskazując na plaże, las oraz fakt, że zieleń pokrywa ponad 60 proc. powierzchni miasta.
W proteście mają wziąć udział także przedstawiciele Rodzinnych Ogrodów Działkowych „Oaza”, które znajdują się na obszarze objętym planowanymi zmianami.
Jak relacjonuje organizator protestu, działkowcy są zaniepokojeni narracją sugerującą konieczność likwidacji ogrodów.
– Dla wielu mieszkańców to miejsce uprawy, wypoczynku i lokalne zaplecze żywnościowe. Trudno zaakceptować argument, że ewentualne pojedyncze przypadki wynajmu altan mają być powodem likwidacji całego terenu zielonego – mówi Jakub Świderski.
W ostatnich tygodniach temat przyszłości ROD „Oaza” wywołuje coraz większe emocje wśród mieszkańców Sopotu i sąsiedniej Żabianki. W internecie pojawiła się również petycja w obronie ogrodów działkowych, której autorka apeluje o zachowanie tego terenu jako przestrzeni zielonej.
::news{"type":"see-also","item":"40755"}
Jednym z wątków pojawiających się w dyskusji o przyszłości tego obszaru jest kwestia mieszkań komunalnych. W debacie publicznej pojawiają się sugestie, że zabudowa mogłaby częściowo odpowiadać na potrzeby mieszkaniowe mieszkańców Sopotu.
Jakub Świderski podchodzi do tego argumentu sceptycznie i przypomina wcześniejsze inwestycje, którym w jego ocenie towarzyszyła podobna narracja, a które jego zdaniem miały ostatecznie zakończyć się powstaniem apartamentów deweloperskich.
– W żadnym dokumencie nie ma zapisu o budowie mieszkań komunalnych w tym miejscu. Tymczasem budowanie narracji sugerującej, że przeciwnicy zabudowy są przeciwko mieszkaniom dla Sopocian, jest po prostu nieuczciwe – ocenia radny.
Sopocki magistrat przypomina jednak, że w przypadku likwidacji ogrodów działkowych gmina ma obowiązki wynikające wprost z przepisów. Jak przekazała rzeczniczka urzędu, w razie likwidacji ogrodów działkowych miasto będzie zobowiązane do wskazania terenów zamiennych dla działkowców oraz wypłaty odszkodowań.
To ważny element całej procedury, choć nie zmienia faktu, że dla części użytkowników działek sama perspektywa likwidacji ogrodu pozostaje nie do zaakceptowania.
Organizatorzy protestu zapowiadają, że blokada ronda przy Ergo Arenie będzie krótka i symboliczna, jednak kierowcy powinni liczyć się z utrudnieniami w ruchu. Między godziną 11 a około 11:30 rondo może zostać na kilkanaście minut zablokowane. Organizatorzy sugerują, aby w tym czasie kierowcy wybierali alternatywne trasy, np. Al. Niepodległości.
Sprawa zagospodarowania terenów przy Ergo Arenie od kilku tygodni budzi coraz większe zainteresowanie mieszkańców. Wcześniej pojawiła się m.in. petycja w obronie ROD „Oaza”, a także liczne głosy sprzeciwu wobec możliwej zabudowy tego obszaru.
Projekt planu miejscowego dla terenów przy granicy Sopotu i Gdańska wciąż znajduje się w procedurze planistycznej. W najbliższych miesiącach okaże się, czy społeczny sprzeciw wobec zabudowy przełoży się na ewentualne zmiany w planach miasta.
::news{"type":"see-also","item":"40118"}
15 2
"Krótka, symboliczna blokada drogi" no żesz kur... jak ja to czytam. Takim protestem nic nie zdziałacie. W ramach protestu powinniście iść w dzień powszedni przed ratusz i siedzieć tam, dopóki Jachim nie wyjdzie na rozmowę. A nie będzie chciała wyjść? To wy do niej idźcie.... Kiedy ludzie zaczną normalnie i skutecznie protestować, a nie chodzić na spacery???? Nie zdziwcie się jak za 2 lata tam będzie wysryw betonu...
13 3
Serio myślicie, że Jachim się przejmie waszym sobotnim spacerkiem? Poprzednik ma rację, protest powinien być protestem, a nie "spacerem". Trzeba iść pod urząd i czekać na dialog z urzędem.
5 1
No ale co ma na celu taki komentarz ? Trzeba próbować. Miasto to mieszkańcy.
5 0
To prawda, lepiej to niż totalna bierność.
12 2
Zablokujcie to rondo, dopóki prezydent nie przyjdzie na rozmowę, a nie jakieś 30min. Co za żenada.
14 1
Najbardziej irytujące w tym wszystkim nie jest lanie betonu, tylko to, że wmawia się mieszkańcom Sopotu, że mieszkania po 50k za m2 są dla ich dobra... A argument, że ROD mają mieszkańcu po za Sopotu? Już widzę większość mieszkań, które tam powstaną będą należeć do (prawdziwych) mieszkańców Sopotu, a nie do Warszawiaków i innych Krakowiaków XDDDDDD
3 0
Ej, Jak dacie nam tam mieszkanie, dla mnie i mamy to możecie sobie budować tam co chcecie.
3 0
Brońmy działek i terenów zielonych!
Ponad podziałami. Ponad polityką. Razem.
2 0
Dobry kierunek, potem ewentualnie blokada urzędu miejskiego, dość oszukiwania mieszkańców Sopotu, mieszkańcy powinni mieć ostateczny głos jak ma wyglądać ich miasto a nie garstka radnych i niekompetentnej prezydent .
0 0
Kłamią kłamią radni Sopotu,,,,, tam sa ujęcia wody które nagle zniknęły z map,, to jest bardzo podmokły teren, niech buduja za pare lat samochody w halach garażowych beda pływały
Użytkowniku, pamiętaj, że w Internecie nie jesteś anonimowy. Ponosisz odpowiedzialność za treści zamieszczane na portalu esopot.pl. Dodanie opinii jest równoznaczne z akceptacją Regulaminu portalu. Jeśli zauważyłeś, że któraś opinia łamie prawo lub dobry obyczaj - powiadom nas [email protected] lub użyj przycisku Zgłoś komentarz